Mieszkanie dwupoziomowe z ogródkiem i miejscem parkingowym.
Skawina Pokaż na mapie ›
Odświeżone: Piątek, 24 Październik, 2025 17:45
448 000 zł
3896 zł/m2
Szczegóły ogłoszenia
- Kategoria: Mieszkania / Sprzedaż
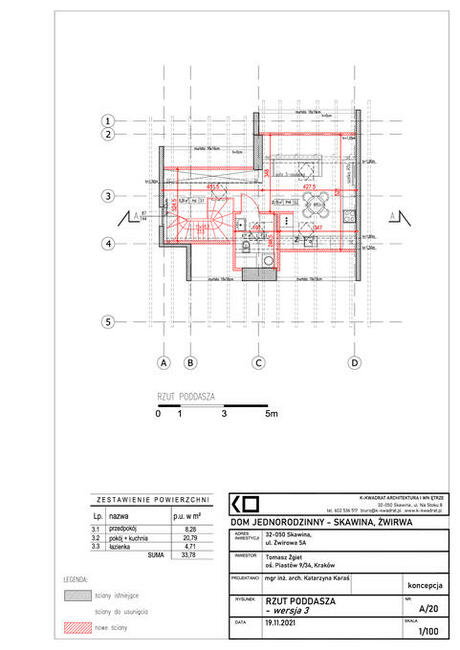
- Powierzchnia:115 m2
- Liczba pokoi:5 i więcej pokoi
- Zabudowa:Dom
- Tech. budowy:Pustak
- Piętro :2 piętro
- Liczba pięter:4 piętra
- Rynek:Wtórny
- Stan:Do zamieszkania
- Forma kuchni:Aneks
- Sprzedaż:Bez pośredników
- Inf. dodatkowe:Loggia, Balkon, Taras, Ogródek, Dwupoziomowe, Piwnica, Miejsce parkingowe, Garaż
- Nr. księgi wieczystej:Pokaż Przeglądaj księge →
- Cena: 448 000 zł / 3896 zł/m2
- Ulica: Żwirowa
Opis oferty
Mam do zaoferowania mieszkanie dwupoziomowe do wykończenia z ogródkiem i miejscami parkingowymi.Mieszkania, oferowane w ogłoszeniu: II piętro 3 pokoje z aneksem kuchennym, łazienka z wc, komunikacja - 55 m2, drugi poziom: otwarte poddasze, studio z aneksem kuchennym, łazienką z wc i komunikacja - 55 m2. po podłodze. Razem 110 m2. Cena poddasza II poziomy 448000, parter II poziomu 498000 zł.
Piwnica- kotłownia z pralnią i suszarnią - 21m2.
Obiekt z dużym potencjałem, zaprojektowany na 4 mieszkania pod wynajem.
Działka o powierzchni 469m2 idealna do odpoczynku, relaks przy grillu.
Budynek po termoizolacji z aktualnymi wymaganiami 18 cm styropian, dach 30 cm wełny. Okna plastikowe.
Możliwość wydzielenia 2 samodzielnych mieszkań dwupoziomowych i oddzielna sprzedaż ze współwłasnością działki. Wszystkie media w budynku: prąd, gaz, woda, kanalizacja. Ogrzewanie, pompa ciepła i podłogówka. Możliwość dwóch niezależnych instalacji grzewczych, pompa lub kocioł gazowy.
Zapraszam do zapoznania się z ofertą.
Możliwość zamiany, w rozliczeniu na dom, chatę, działkę w rejonie Myślenic, Dobczyc, Gdowa lub Wieliczki.
Sprawdź zainteresowanie tym ogłoszeniem
Wyświetlenia
Data dodania
Ostatnio widziany
Obserwujących
Wysłane zapytania
Odsłony telefonu
Powiadom o podobnych ogłoszeniach
Lokalizacja: Skawina
Kategoria: Nieruchomości » Mieszkania » Sprzedaż
Cena: od 381000 zł do 515000 zł Powierzchnia : od 98 m2 do 132 m2
Chcę otrzymywać powiadomienia o nowych ofertach
Tomasz
Konto firmowe
Na Lento.pl od 29 maj 2019
Odpowiada szybko
Strona użytkownika
- Wypromuj ogłoszenie
- Zgłoś naruszenie
- Drukuj ulotkę
- Edytuj/usuń ogłoszenie
- Udostępnij ogłoszenie
- Dodaj na Facebook





























